800 FM 1626

Buda, TX 78610 · Hays County

$9,464/mo Rent
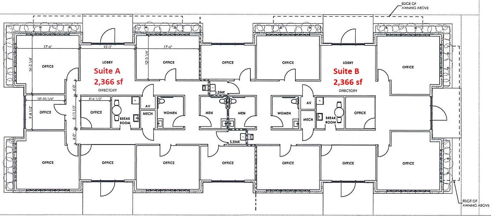
2,366Sq. Ft.
800 FM 1626
1 / 3
Photo 1
Photo 2
Photo 3

Description

Now Pre-leasing! 1,500 square feet – 7,500 square feet available as well as Executive Offices with shared conference room. Construction aimed to be completed 4th Quarter 2025. High end, newly constructed, office complex on FM 1626 with Professional Landscaping throughout complex with open parking and green space. Signage near two entrances on FM 1626. Located Near Starbucks, CVS, McDonald’s, Chic-fil-A and other retail & automotive. Surrounded by existing and new residential developments, two elementary schools, Dahlstrom Middle School and Johnson High School. Approx. 25,000 cars per day. Locally owned and managed! Ideal for law, financial, therapy, real estate, medical offices and more!

Contact Agent

C
Col Realty
Col Realty
(512) 699-3810

Property Details

StatusActive
MLS #ACT124172480
TypeCommercial Lease
Year Built2024
Living Area2,366 Sq. Ft.
Lot Size2.76 AC / 120,007 SF
CountyHays
SubdivisionMarlboro Country

Property Information

Parking

Common

Utilities & Finishes

Heat: Central AC: Central Air Vinyl

Directions: Located on FM 1626, just south of Intersection with FM 967. Easy access to IH 35, Mopac (45 Toll), 20 miles south of Downtown Austin

Location

Listing History

DateEventRent
Mar 12, 2026 Listed (Active) · MLS# ACT124172480 $9,464/mo

Data sourced from ACTRIS MLS.

Public Records

Property TypeCommercial Lease
Year Built2024
Living Area2,366 sq ft
Lot Size2.76
CountyHAYS
MLS #ACT124172480
$9,464/mo
800 FM 1626, Buda, TX
Beds / Baths 0 bd / — ba
Sq. Ft. 2,366

By submitting, you agree to be contacted by Col Realty.