1034 Canyon Bend

Dripping Springs, TX 78620 · Hays County

$15/mo Rent
4,800Sq. Ft.
1034 Canyon Bend
1 / 9
Photo 1
Photo 2
Photo 3
Photo 4
Photo 5
Photo 6
Photo 7
Photo 8
Photo 9
▶ Virtual Tour

Description

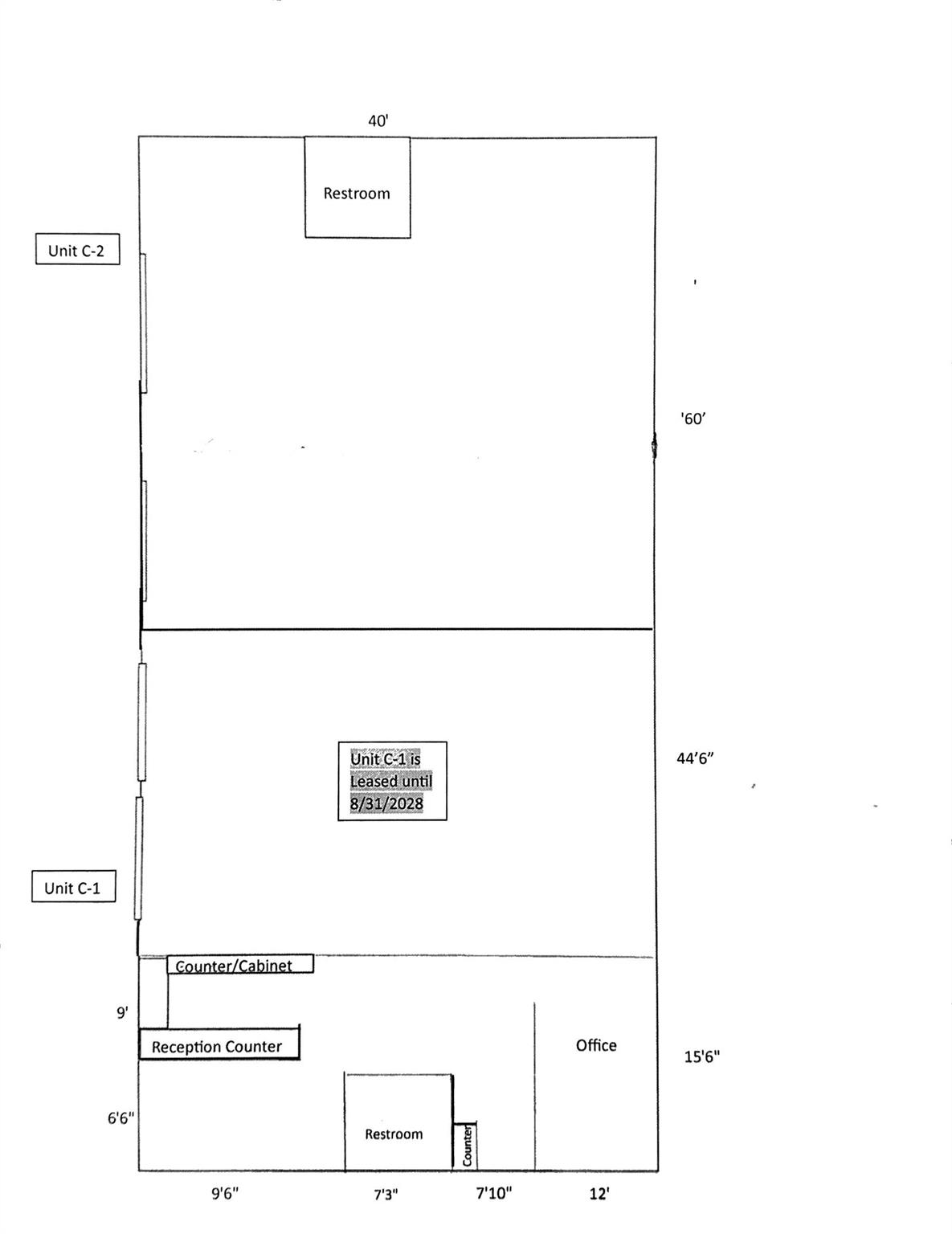
Quick access to Hwy 290, Side C-1 has an open warehouse with 3 overhead doors and 600 SF of air-conditioned office space and 1 restroom. Side C-2 is an open warehouse with one restroom. Formerly an auto mechanic shop with air compression line available in each unit. 3 phase power to the building. Excellent parking on this 2-acre site.

Contact Agent

C
Col Realty
Col Realty
(512) 699-3810

Property Details

StatusActive
MLS #ACT122582127
TypeCommercial Lease
Year Built2003
Stories1
Living Area4,800 Sq. Ft.
Lot Size2.11 AC / 92,116 SF
CountyHays
SubdivisionSunset Canyon Sec Ii-C

Property Information

Parking

AsphaltDoor-MultiDrivewayGarage Faces FrontOn Site

Utilities & Finishes

Heat: None AC: None Concrete, Laminate

Directions: 290 west left on Canyon Bend right into parking lot, Bldg C faces Canyon Bend Dr.

Location

Listing History

DateEventRent
Mar 12, 2026 Listed (Active) · MLS# ACT122582127 $15/mo

Data sourced from ACTRIS MLS.

Public Records

Property TypeCommercial Lease
Year Built2003
Living Area4,800 sq ft
Lot Size2.11
CountyHAYS
MLS #ACT122582127
$15/mo
1034 Canyon Bend, Dripping Springs, TX
Beds / Baths 0 bd / — ba
Sq. Ft. 4,800

By submitting, you agree to be contacted by Col Realty.